
宮崎市吉村町引土の平屋の建売情報です。
檍小学校まで450m、セブンイレブン宮崎檍小学校前店まで300mの距離です。
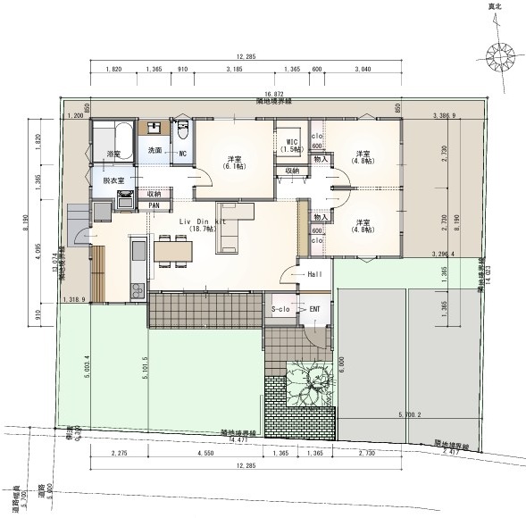
前面道路が幅員8mの南道路なので陽当たりの良いリビングです。
駐車場は3台以上可です。
当物件より120mほど東に、都市計画道・吉村通線の計画があります。
玄関にシューズクローク
主寝室にウォークインクローゼット
将来間仕切り可能な子ども部屋
各所に収納スペース
★★★物件概要★★★
価格:3890万円(土地1800万円、建物1900万円+消費税10%)
所在地:宮崎市吉村町引土甲629-10
土地面積:226.96㎡(69.65坪)
建物面積:94.81㎡(28.68坪)
地目:宅地
用途地域:第二種中高層住居専用地域
建ぺい率/容積率:60%/200%
構造:木造鋼板葺き平家建て
間取り:3LDK(LDK18.7帖、主寝室6.1帖、子ども部屋4.8帖×2)
セブンイレブン宮崎檍小学校前店 300m
フェニックスガーデンうきのじょう 750m
イオンモール宮崎 1.5km
ヤマダ電機テックランド新宮崎本店 1.7km
宮崎駅 1.5km
















